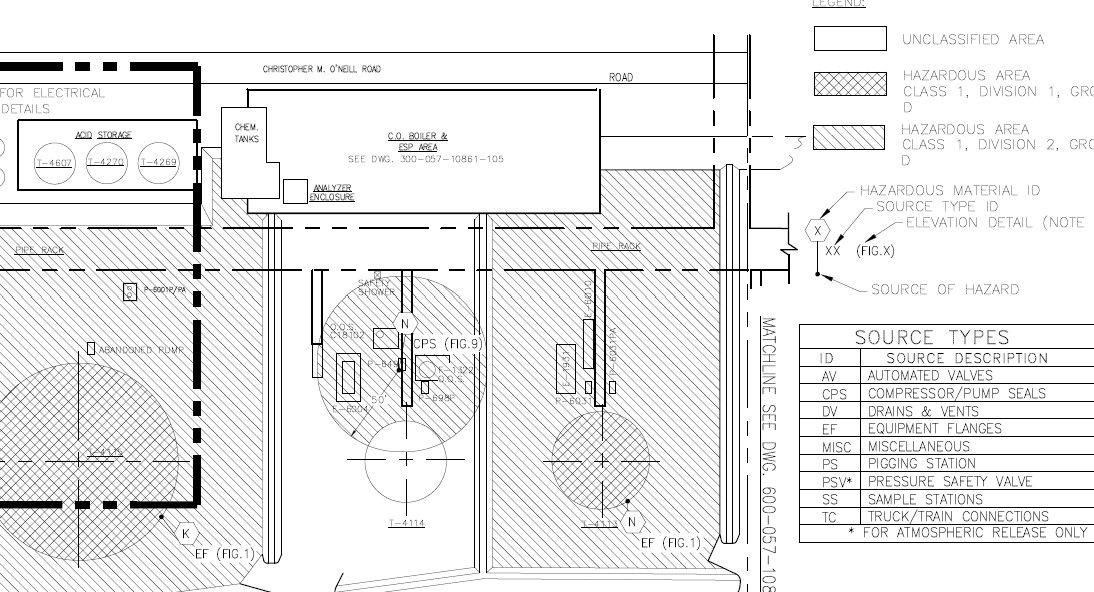
Area Classification Updates
C&I’s team performed several field audits to update existing and generate new (where required) control documents, over 160 drawings total, including unit plot plans and Electrical Area Classification drawings for OSHA PSM compliance. This team walked down every unit inside the 550 acre refinery, noting any changes currently in the field that were not reflected on the unit plot plants within a very short time frame. The updated documents were then used to create and revise electrical hazard area classification drawings for each unit in the refinery based on industry standards. Additionally, the team performed a gap analysis for sixteen buildings to evaluate ventilation systems, purge integrity, and equipment rating.
We were recommended for this project by another site who was pleased with our services on a similar project at their facility. Since this facility had recently changed ownership, the client relied heavily on our team’s extensive knowledge of the new owner’s standards to assist with bringing the site into compliance. Our team successfully completed the electrical area classification drawing updates within the required timeframe, ensuring the compliance deadline was met.






